About

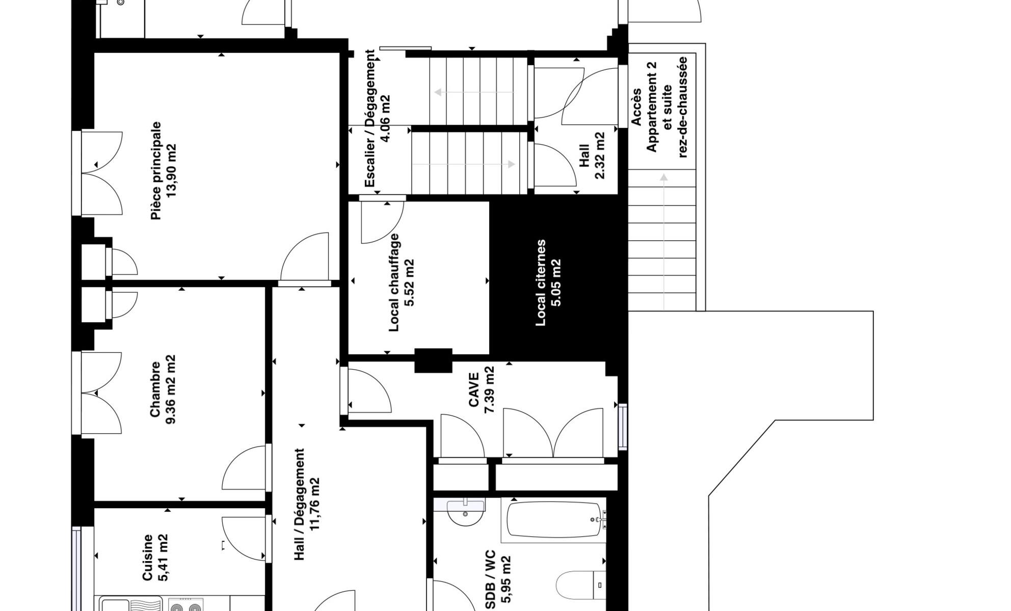
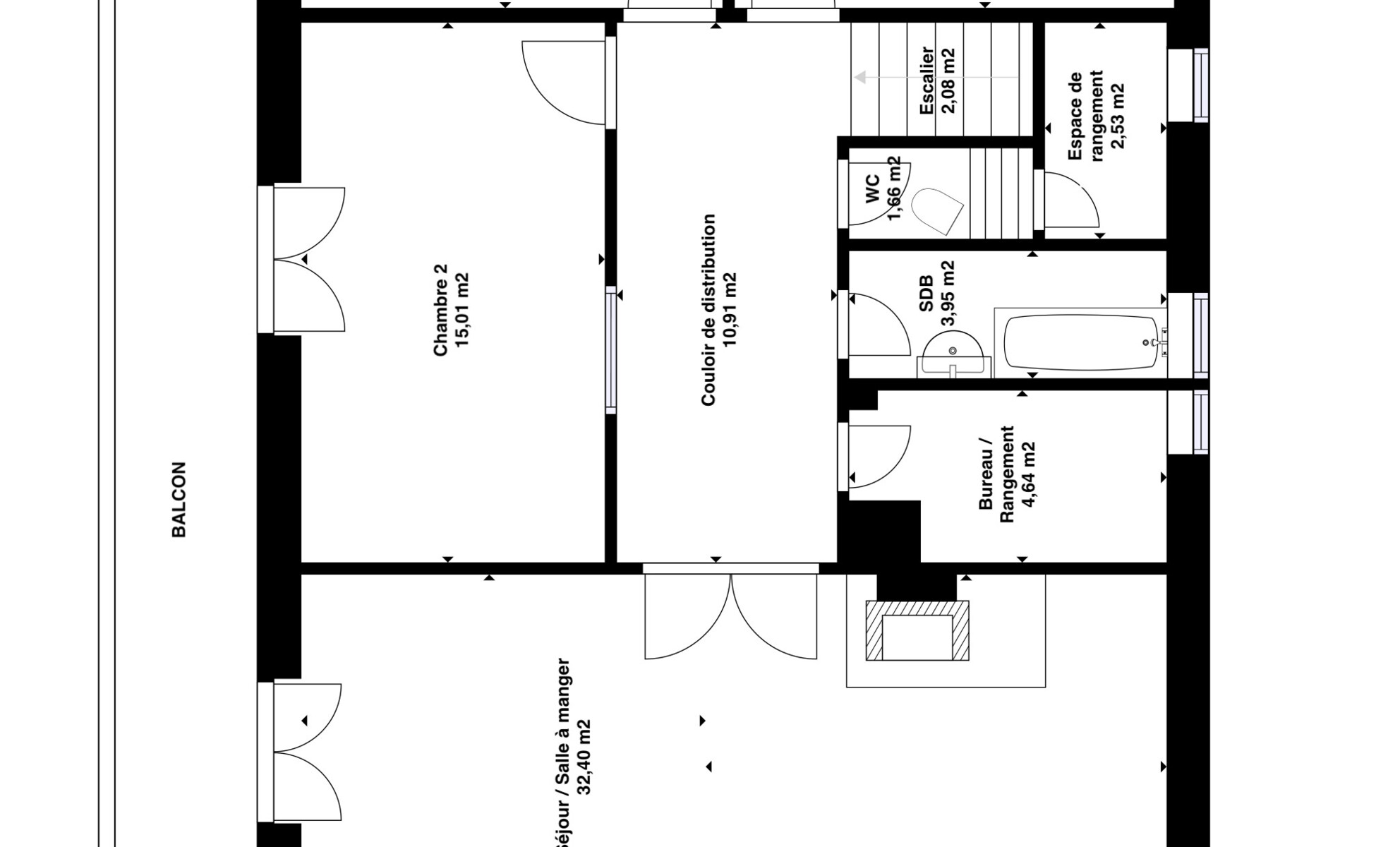
This stunning property boasts a spacious and impressive living space spanning over 151 m², with an additional 204 m² of useful area. It is situated on a sizeable land surface of 863 m², providing ample outdoor space for various activities and amenities. The property offers seven well-appointed rooms, providing plenty of space for a large family or for those who enjoy having extra space for a home office or guest rooms. The layout of the rooms has been thoughtfully designed to maximize the functionality and comfort of the living space. Situated on the __ floor, this property offers breathtaking views and plenty of natural light throughout the day. The living area is perfect for entertaining or simply enjoying quality family time, while the bedrooms offer a peaceful retreat for rest and relaxation. This property also includes one parking spot, adding convenience for residents who have a vehicle. In addition, a parking box is also included, providing secure and covered parking. The price of this property includes the parking, making it an excellent value for such a desirable feature. Overall, this property is an exceptional find, offering a generous amount of living space, a spacious land surface, and convenient parking options. Don't miss out on the opportunity to call this property your dream home.

Property Details

Bedrooms 4 Bedroom(s)
Bathrooms 2 Bathroom(s)
Square 204 Sq Ft
Garages 1 Garage(s)
Floors 2 Floor(s)

Property Features

Location

Crissier, 1023